modscapecliffhouse

Bizar! Huis gebouwd aan wand van Australische Klif

Nieuws12 sep 2014, 16:00doorAnnemerel de Jongh
Leuk zakcentje over en op zoek naar een leuk vakantiehuisje in Australië? Het Australische vastgoedbedrijf Modscape heeft misschien wel iets leuks voor je in de aanbieding. Oh ja, je moet geen hoogtevrees hebben.
Het huis genaamd "Cliff House" is geïnspireerd op zeepokken die zich aan een boot vastklampen. In het design wordt gebruik gemaakt van stalen pinnen die in de rots zijn geslagen zodat het huis aan de klip vast blijft zitten.
modscape-cliffhouse-plattegrond
modscape-cliffhouse-plattegrond
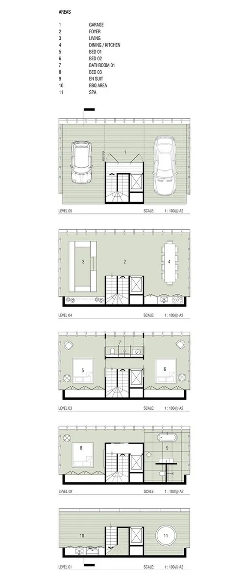
De bovenste verdieping heeft een patio en een garage die ruimte biedt voor twee auto's. Op de onderste verdieping is een open dek ruimte waar er ruimte is voor een jacuzzi en barbecue. Alle verdiepingen zijn verbonden met zowel een trap als een lift.
modscape-cliffhouse-verdiepingen
modscape-cliffhouse-verdiepingen
Het huis telt vijf verdiepingen en heeft drie badkamers, een leefgedeelte, een keuken en gigantische ramen die voor een prachtig uitzicht over de oceaan zorgen.
modscape-cliffhouse-1
modscape-cliffhouse-1
modscape-cliffhouse-2
modscape-cliffhouse-2
Iets voor jou? We hebben de prijs van dit optrekje helaas niet kunnen achterhalen, maar reken maar op een leuk bedrag.
Bekijk meer bijzondere optrekjes op de website van Modscape.
Deel dit bericht

Loading